买球注册账号(中国)有限公司

24小时电话
18980800355

高效送风口-高效过滤送风口

华锐净化 / 2020-09-10 07:38:33 / 阅读
高效送风口-高效过滤送风口 - 四川华锐净化工程

买球注册账号(中国)有限公司

高效送风口-高效过滤送风口
高效过滤送风口包括有隔板高效过滤器送风口和无隔板高效过滤器送风口。两都之间区别在于使用的为有隔板高效过滤器和无隔板高效过滤器。

高效过滤送风口


高效过滤送风口也就高效送风口,一般采用最新技术设计,使气流分布更加合理、箱体结构简单可靠,外壳采用宝钢冷轧钢板制作,表面经喷塑或烤漆处理,防酸防腐蚀,含静压箱,散流板,高效过滤器,与风管的接口可以为顶接或侧接。送风口均有良好的气流组织,达到洁净区减少死区的目的,保证了净化效果,是用作新建或改造千级至三十万级别的洁净室的终端过滤装置,是满足净化要求的关键设备。

高效送风口应用:
1.彩钢板结构及铝合金龙骨的洁净室。
2.因洁净室的高度受土建高度的限制,而必须采用紧凑型设计方式的洁净室。
3.部分局部净化设备。

高效送风口特点:
1.系列高效送风口外壳箱体采用宝钢优质冷轧钢板制作,外表面静电喷塑处理或烤漆处理,配有散流板。
2.高效送风口可作为终端高效过滤装置直接安装在洁净室顶棚处 ,结构紧凑,密封性能可靠,进风方式有侧进风和顶进风,法兰口有方形和圆形两种结构。
3.有时洁净室由于受到土建高度限制或必须采用紧凑型设计时,可选用一体化高效过滤器送风口。
4.重量轻、安装更方便,尤其适合安装于彩钢板结构及铝合金龙骨的洁净室中。
5.可根据用户要求加装调节阀和保温层。

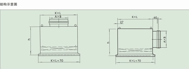
高效过滤送风口结构图


高效送风口型号及技术参数:

 

型 号
顶端风(侧送风)
额定风量
(m3/h)
高效过滤尺寸mm
(宽×高×深)
外形尺寸mm
(宽×高×深)
吊顶开口尺寸mm 进风管尺寸mm
GKF-5IA(5IIA) 500 320×320×220 370×370×500 380×380 200×200
GKF-7IA(7IIA) 700 484×484×150 534×534×500 545×545 320×200
GKF-10IA(10IIA) 1000 484×484×220 534×534×500 545×545 320×200
GKF-10IB(10IIB) 1000 610×610×150 660×660×500 670×670 320250
GKF-12IA(12IIA) 1200 820×600×150 870×650×500 880×660 320×250
GKF-15IA(15IIA) 1500 726×484×220 776×534×500 786×545 400×200
GKF-15IB(15IIB) 1500 630×630×220 680×680×500 690×690 320×250
GKF-15IC(15IIC) 1500 915×610×150 965×660×500 975×670 500×250
GKF-20IA(20IIA) 2000 968×484×220 1080×534×500 1030×545 500×200
GKF-20IB(20IIB) 2000 1220×610×150 1270×660×500 1280×670 630×250
GKF-22IA(22IIA) 2200 945×630×220 995×680×500 1005×690 500×250
GKF-30IA(30IIA) 3000 1260×630×220 1310×680×500 1320×690 630×250

 

一体化高效送风口特点:
1.广泛使用于10万级到10级的洁净室内,应用于药厂、生物技术、食品饮料厂、微电子行业、半导体行业、光学实验室。
2.HEPA BOX系列很方便地安装在T形龙骨中(不需要额外的压紧装置),并可方便的与风管(直径10"或者12")相连接。
3.HEPA BOX系列由专用挤铝型材边框以及接口一次成型的铝板制作而成,进风口内侧安装散流板,并在过滤器出风面装有过滤器保护网。强度好、高度低、重量轻,方便搬运和安装。

一体化高效送风口型号及参数:

风量m3/h
初阻力和过滤效率
配套过滤器尺寸(mm)
箱体外形尺寸(mm)
HEPA
ULPA
Ⅰ型
Ⅱ型
Ⅲ型
1000
220Pa99.99%@0.3μm
250Pa99.9995%@0.12μm
600×600×150
565×565×91(液槽)
530×530×80
600×600
1500
915×600×150
880×565×91(液槽)
845×530×80
915×600
2000
1210×600×150
1175×565×91(液槽)
1140×530×80
1210×600

 

高效送风口-高效过滤送风口链接地址:

x
手机
电话
微信